Beispielplanungen aus dem Tischer-/Schreinerhandwerk
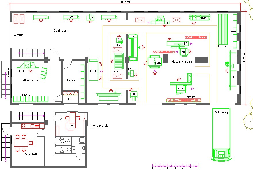
| Planungsbeispiel 1: | Betrieb für eine gemischte Fertigung mit bis zu vier handwerklichen Mitarbeitern (s. auch Planungsbeispiel 2:) |
| Fertigungsprogramm: | Innenausbau, Fensterbau, Treppenbau, Möbelbau, Haustüren, Innentüren, Pergolen, etc. |
| Gebäude: | Nutzungsänderung, vormals landwirtschaftliche Nutzung, Fertigung: ca. 373 qm, Büro/Mitarbeiterbereich: ca. 60 qm |
| Planungslayout: |
|